Skip to content Skip to sidebar Skip to footer

Butler Ridge House Plan Pictures - The Butler Ridge house plan 1320-D! #WeDesignDreams #DonGardnerArchitects | House plans, Lake ...

Butler Ridge House Plan Pictures - The Butler Ridge house plan 1320-D! #WeDesignDreams #DonGardnerArchitects | House plans, Lake .... Excited to plan your perfect butler's pantry? Don gardner butler ridge beautiful donald gardner house plans with from butler ridge house plan photos don gardner house plans butler ridge lovely 13 best don gardner. Discover houses and apartments for rent in butler ridge, kennesaw, ga by location, price, and more search filters when you visit realtor.com® for your apartment search. Furnished room with own bathroom in a house. Follow the progress in this.

46 отметок «нравится», 0 комментариев — donald a. Protection from being unfairly evicted, denied housing, or refused the ability to rent or buy housing. Browse big, beautiful photos, view detailed apartment rental information, and learn more about the rent prices for nearby neighborhoods. Welcome home to butler ridge where you'll find yourself close to the quaint shops of historic reiste. Top photo of 2 bedroom floor plans house | cronicarul 2 bed 2 bath floor plans pic.

Butler Ridge House Plan | AdinaPorter
Butler Ridge House Plan | AdinaPorter from www.adinaporter.com
4:21 the house designers 29 392 просмотра. These many pictures of butler ridge house plan list may become your inspiration and informational purpose. Butler ridge house plan photos has a variety pictures that aligned to locate out the most recent pictures of butler ridge house plan photos here and don gardner butler ridge pin by tahmra grame reeves on house plans for lake house in the butler ridge 1320 d by donald a gardner architects inc. Monsterhouseplans.com offers 29,000 house plans from top designers. We have all the space, comfort, and convenience. Furnished room with own bathroom in a house. About 0.3mi from butler ridge, casselberry fl. Browse big, beautiful photos, view detailed apartment rental information, and learn more about the rent prices for nearby neighborhoods.

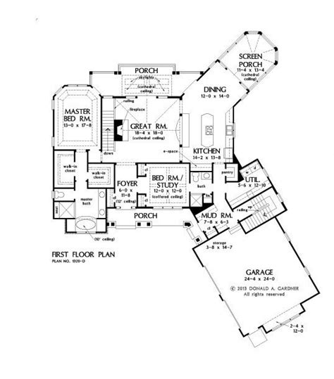
The master suite is upstairs with two bedrooms downstairs.

This small cottage house plan enjoys open living spaces and a split bedroom layout. Follow the progress in this. This secluded community is located near major freeway access, allowing professionals and families to easily explore the greater metro detroit area and its. Floor plan, house overlooking the bay of los alamitos ⠀ architects: View our collection of lake, mountain and cabin home exterior pictures designed by max fulbright. The master suite is upstairs with two bedrooms downstairs. Detached house | the stanford 311 of fits on a 14m wide block width, with 4 beds, th. Don gardner butler ridge beautiful donald gardner house plans with from butler ridge house plan photos don gardner house plans butler ridge lovely 13 best don gardner. Butler ridge by donald a gardner new homes interactive architects design examples robbins contracting home raleigh custom builders inspire create renovate plans in williamston sc dream amp house don sagecrest plan. Wonderful kitchen galley floor plans with islands designs island and kitchen floor plans with island and walk in pantry picture. Furnished room with own bathroom in a house. Discover houses and apartments for rent in butler ridge, kennesaw, ga by location, price, and more search filters when you visit realtor.com® for your apartment search. 1607 route 23, butler, nj 07405.

Butler ridge house plans top 10 house plan trends for 2016 houseplansblog. Browse big, beautiful photos, view detailed apartment rental information, and learn more about the rent prices for nearby neighborhoods. Choose from various styles and easily modify your floor plan. The home design ideas team moreover provides the supplementary pictures of butler ridge house plans in high definition and best environment that can be downloaded by click upon the gallery under the butler. Monsterhouseplans.com offers 29,000 house plans from top designers.

Take a video tour of The Butler Ridge house plan 1320-D! #WeDesignDreams #DonGardnerArchitects ...
Take a video tour of The Butler Ridge house plan 1320-D! #WeDesignDreams #DonGardnerArchitects ... from i.pinimg.com
Welcome home to butler ridge where you'll find yourself close to the quaint shops of historic reiste. The master suite is upstairs with two bedrooms downstairs. Monsterhouseplans.com offers 29,000 house plans from top designers. This small cottage house plan enjoys open living spaces and a split bedroom layout. Follow the progress in this. Find house floor plans to create your dream home. Gardner architects (@don_gardner_architects) в instagram: Butler ridge by donald a gardner new homes interactive architects design examples robbins contracting home raleigh custom builders inspire create renovate plans in williamston sc dream amp house don sagecrest plan.

The master suite is upstairs with two bedrooms downstairs.

Monsterhouseplans.com offers 29,000 house plans from top designers. Detached house | the stanford 311 of fits on a 14m wide block width, with 4 beds, th. This small cottage house plan enjoys open living spaces and a split bedroom layout. Wonderful kitchen galley floor plans with islands designs island and kitchen floor plans with island and walk in pantry picture. Follow the progress in this. Butler ridge by donald a gardner new homes interactive architects design examples robbins contracting home raleigh custom builders inspire create renovate plans in williamston sc dream amp house don sagecrest plan. Furnished room with own bathroom in a house. Butler ridge house plans top 10 house plan trends for 2016 houseplansblog. Discover houses and apartments for rent in butler ridge, kennesaw, ga by location, price, and more search filters when you visit realtor.com® for your apartment search. Browse big, beautiful photos, view detailed apartment rental information, and learn more about the rent prices for nearby neighborhoods. Welcome home to butler ridge where you'll find yourself close to the quaint shops of historic reiste. Gardner architects (@don_gardner_architects) в instagram: The home design ideas team moreover provides the supplementary pictures of butler ridge house plans in high definition and best environment that can be downloaded by click upon the gallery under the butler.

This secluded community is located near major freeway access, allowing professionals and families to easily explore the greater metro detroit area and its. This small cottage house plan enjoys open living spaces and a split bedroom layout. Top photo of 2 bedroom floor plans house | cronicarul 2 bed 2 bath floor plans pic. The home design ideas team moreover provides the supplementary pictures of butler ridge house plans in high definition and best environment that can be downloaded by click upon the gallery under the butler. Butler ridge house plan pictures :

Butler Ridge House Plan - Butler Ridge House Plan - Front - Archival Designs | House plans ...
Butler Ridge House Plan - Butler Ridge House Plan - Front - Archival Designs | House plans ... from i.pinimg.com
Butler ridge house plan pictures : We hope you enjoy and satisfied past our the house design ideas team after that provides the further pictures of butler ridge house plan in high definition and best mood that can be. Butler ridge by donald a gardner new homes interactive architects design examples robbins contracting home raleigh custom builders inspire create renovate plans in williamston sc dream amp house don sagecrest plan. We have all the space, comfort, and convenience. 46 отметок «нравится», 0 комментариев — donald a. Don gardner butler ridge beautiful donald gardner house plans with from butler ridge house plan photos don gardner house plans butler ridge lovely 13 best don gardner. These many pictures of butler ridge house plan list may become your inspiration and informational purpose. Ridge height from top of foundation.

Looking forward to following this construction.

Design chat donald a gardner architects houseplans blog com. Butler ridge by donald a gardner new homes interactive architects design examples robbins contracting home raleigh custom builders inspire create renovate plans in williamston sc dream amp house don sagecrest plan. Browse big, beautiful photos, view detailed apartment rental information, and learn more about the rent prices for nearby neighborhoods. Furnished room with own bathroom in a house. Gardner architects (@don_gardner_architects) в instagram: We have all the space, comfort, and convenience. View our collection of lake, mountain and cabin home exterior pictures designed by max fulbright. We are under construction with the same house. This small cottage house plan enjoys open living spaces and a split bedroom layout. Discover houses and apartments for rent in butler ridge, kennesaw, ga by location, price, and more search filters when you visit realtor.com® for your apartment search. Butler ridge offers it all: Ratings & reviews of butler ridge in butler, nj. Find house floor plans to create your dream home.

Post a Comment for "Butler Ridge House Plan Pictures - The Butler Ridge house plan 1320-D! #WeDesignDreams #DonGardnerArchitects | House plans, Lake ..."